Szkolna 6

Lipka, Szkolna

Opis nieruchomości

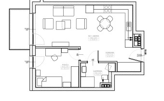
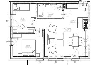
Mieszkania 2 i 3 pokojowe o powierzchniach od 35,26 do 56,07m 2 Budynek 2 piętrowy z windą.

Kupujący nie płaci prowizji!

Nowa inwestycja, blok zlokalizowany Lipce przy ul. Szkolnej 6

W OFERCIE DOSTĘPNE SĄ MIESZKANIA 2-3 POKOJOWE, NA RÓŻNYCH PIĘTRACH, O RÓŻNEJ POWIERZCHNI I UKŁADZIE


Atutem inwestycji jest lokalizacja.
Budynek położony w pobliżu głównej drogi co pozwala łatwo przemieścić się w kierunku Złotowa lub Człuchowa.

MIESZKANIA NA PARTERZE Z OGRÓDKAMI I ROLETAMI ZEWNĘTRZNYMI

Bardzo blisko szkoła podstawowa oraz market, co na pewno przypadnie do gustu rodzinom.

Każde mieszkanie posiada balkon który będzie wykończony szklanymi balustradami.

Nowoczesne technologie oraz dobrej jakości materiały pozwolą korzystać z mieszkań nie ponosząc zbyt dużych kosztów chociażby z tytułu ogrzewania.

Wszystkie okna 3 szybowe, co ma wpływ zarówno na ekonomię użytkowania jak i na komfort mieszkania dzięki doskonałej izolacji akustycznej.

Dostępne są również do zakupu garaże posadowione w bryle budynku oraz komórki lokatorskie.

Ogrzewanie mieszkań zrealizowane w oparciu o centralną kotłownię gazową oraz kolektory słoneczne co skutecznie pomaga obniżyć koszty eksploatacji.

Na życzenie kupującego ogrzewanie podłogowe.

Do każdego mieszkania doprowadzony światłowód z sieci Asta- Net

TERMIN ZAKOŃCZENIA BUDOWY - DO KOŃCA 2025 ROKU.

Zapraszamy!

Dostępne oferty

Symbol Powierzchnia Pokoje Piętro Cena Status
FZL-MS-198140 35.26 2 2p 229 190 zł zobacz więcej Aktualna
FZL-MS-198141 45.66 2 parter 299 073 zł zobacz więcej Aktualna
FZL-MS-198142 56.07 3 2p 347 634 zł zobacz więcej Aktualna

Napisz do nas

Proszę wypełnić to pole
Proszę wypełnić to pole
Proszę wypełnić to pole
Proszę wypełnić to pole
Proszę wypełnić to pole
Trwa wysyłanie...

Ta strona wykorzystuje pliki cookies w celach statystycznych oraz w celu dostosowania naszych serwisów do indywidualnych potrzeb klientów. Zmiany ustawień dotyczących plików cookie można dokonać w dowolnej chwili modyfikując ustawienia przeglądarki. Korzystanie z tej strony bez zmian ustawień dotyczących cookies oznacza, że będą one zapisane w pamięci urządzenia.

rozumiem