Lipka

Mieszkanie na sprzedaż

Szczegóły oferty

NOWA INWESTYCJA - MIESZKANIA W STANIE DEWELOPERSKIM,
LIPKA, SZKOLNA 6
Mieszkanie 2 pokojowe na parterze, pow. 45,66m2

 

Kupujący nie płaci prowizji!

Nowa inwestycja, blok zlokalizowany  Lipce przy ul. Szkolnej 6

W OFERCIE DOSTĘPNE SĄ RÓWNIEŻ INNE MIESZKANIA 2-3 POKOJOWE, NA RÓŻNYCH PIĘTRACH, O RÓŻNEJ POWIERZCHNI I UKŁADZIE


Atutem inwestycji jest lokalizacja. Budynek położony w pobliżu głównej drogi co pozwala łatwo przemieścić się w kierunku Złotowa lub Człuchowa.

MIESZKANIE Z OGRÓDKIEM I ROLETAMI ZEWNĘTRZNYMI W CENIE!


Bardzo blisko szkoła podstawowa oraz market, co na pewno przypadnie do gustu rodzinom.

Każde mieszkanie posiada balkon który będzie wykończony szklanymi balustradami.

Nowoczesne technologie oraz dobrej jakości materiały pozwolą korzystać z mieszkań nie ponosząc zbyt dużych kosztów chociażby z tytułu ogrzewania.

Wszystkie okna 3 szybowe, co ma wpływ zarówno na ekonomię użytkowania jak i na komfort mieszkania dzięki doskonałej izolacji akustycznej.


Dostępne są również do zakupu garaże posadowione w bryle budynku oraz komórki lokatorskie.

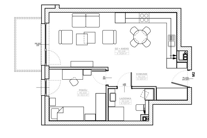
Układ pomieszczeń 2-pokojowego mieszkania o pow. 45,66 m2:
-salon z aneksem kuchennym o pow. 24,04 m2 ,
-sypialnia o pow. 10,11 m2 ,
- łazienka o pow. 4,57 m2 ,
- przedpokój o pow. 6,94 m2

Ogrzewanie mieszkań zrealizowane w oparciu o centralną kotłownię gazową oraz kolektory słoneczne co skutecznie pomaga obniżyć koszty eksploatacji.

Na życzenie kupującego ogrzewanie podłogowe.


Do każdego mieszkania doprowadzony światłowód z sieci Asta- Net

TERMIN ZAKOŃCZENIA BUDOWY - DO KOŃCA 2025 ROKU.

 Zapraszamy!

 

Nota prawna

Opis oferty zawarty na stronie internetowej sporządzany jest na podstawie oględzin nieruchomości oraz informacji uzyskanych od właściciela, może podlegać aktualizacji i nie stanowi oferty określonej w art. 66 i następnych K.C.
Inwestycja Szkolna 6, Lipka
Symbol oferty FZL-MS-198141
Powierzchnia 45,66 m²
Powierzchnia użytkowa 45,66 m²
Liczba pokoi 2
Rodzaj budynku nowe budownictwo
Technologia budowlana silikat
Standard
Liczba pięter w budynku 2
Stan lokalu deweloperski
Stan prawny Umowa z Deweloperem
Okna PCV
Instalacje nowe
Balkon duży
Liczba balkonów 1
Winda tak
Liczba wind 1

Pomieszczenia

Powierzchnia pokoi 24,04 10,11 m2
Typ kuchni aneks kuchenny połączony z jadalnią i salonem
Rodzaj kuchni aneks kuchenny - połączony z salonem
Typ łazienki razem z wc
Powierzchnia łazienki 4,57 m2
Liczba przedpokoi 1
Powierzchnia przedpokoi 6,94 m2

Kalkulator kredytowy

PLN
%
Wysokość raty

Kalkulator kosztów

PLN
PLN
PLN
PLN
PLN
PLN
%
PLN
Podatek od czynności cywilno-prawnych
Taksa notarialna (opłata notarialna)
VAT od taksy notarialnej (opłaty notarialnej)
Wniosek do WKW
VAT od wniosku do WKW
Prowizja agencji nieruchomości
VAT od prowizji agencji nieruchomości
Wypisy aktu notarialnego - około
RAZEM (cena + opłaty)

Podobne oferty

bez prowizji
mieszkanie na sprzedaż - Lipka

mieszkanie na sprzedaż

Lipka
2 pokoje 35,26 m2 6 500,00 zł/m2
bez prowizji
mieszkanie na sprzedaż - Lipka

mieszkanie na sprzedaż

Lipka
3 pokoje 56,07 m2 6 200,00 zł/m2

Napisz do nas

Proszę wypełnić to pole
Proszę wypełnić to pole
Proszę wypełnić to pole
Proszę wypełnić to pole
Proszę wypełnić to pole
Trwa wysyłanie...

Ta strona wykorzystuje pliki cookies w celach statystycznych oraz w celu dostosowania naszych serwisów do indywidualnych potrzeb klientów. Zmiany ustawień dotyczących plików cookie można dokonać w dowolnej chwili modyfikując ustawienia przeglądarki. Korzystanie z tej strony bez zmian ustawień dotyczących cookies oznacza, że będą one zapisane w pamięci urządzenia.

rozumiem