Lipka

Mieszkanie na sprzedaż

Szczegóły oferty

NOWA INWESTYCJA - MIESZKANIA W STANIE DEWELOPERSKIM,
LIPKA, SZKOLNA 6
Mieszkanie 2 pokojowe 35,26m2
II piętro, balkon, winda

Kupujący nie płaci prowizji!

Nowa inwestycja, blok zlokalizowany  Lipce przy ul. Szkolnej 6

W OFERCIE DOSTĘPNE SĄ RÓWNIEŻ INNE MIESZKANIA 2-3 POKOJOWE, NA RÓŻNYCH PIĘTRACH, O RÓŻNEJ POWIERZCHNI I UKŁADZIE


Atutem inwestycji jest lokalizacja. Budynek położony w pobliżu głównej drogi co pozwala łatwo przemieścić się w kierunku Złotowa lub Człuchowa.

MIESZKANIA NA PARTERZE Z OGRÓDKAMI I ROLETAMI ZEWNĘTRZNYMI


Bardzo blisko szkoła podstawowa oraz market, co na pewno przypadnie do gustu rodzinom.

Każde mieszkanie posiada balkon który będzie wykończony szklanymi balustradami.

Nowoczesne technologie oraz dobrej jakości materiały pozwolą korzystać z mieszkań nie ponosząc zbyt dużych kosztów chociażby z tytułu ogrzewania.

Wszystkie okna 3 szybowe, co ma wpływ zarówno na ekonomię użytkowania jak i na komfort mieszkania dzięki doskonałej izolacji akustycznej.


Dostępne są również do zakupu garaże posadowione w bryle budynku oraz komórki lokatorskie.

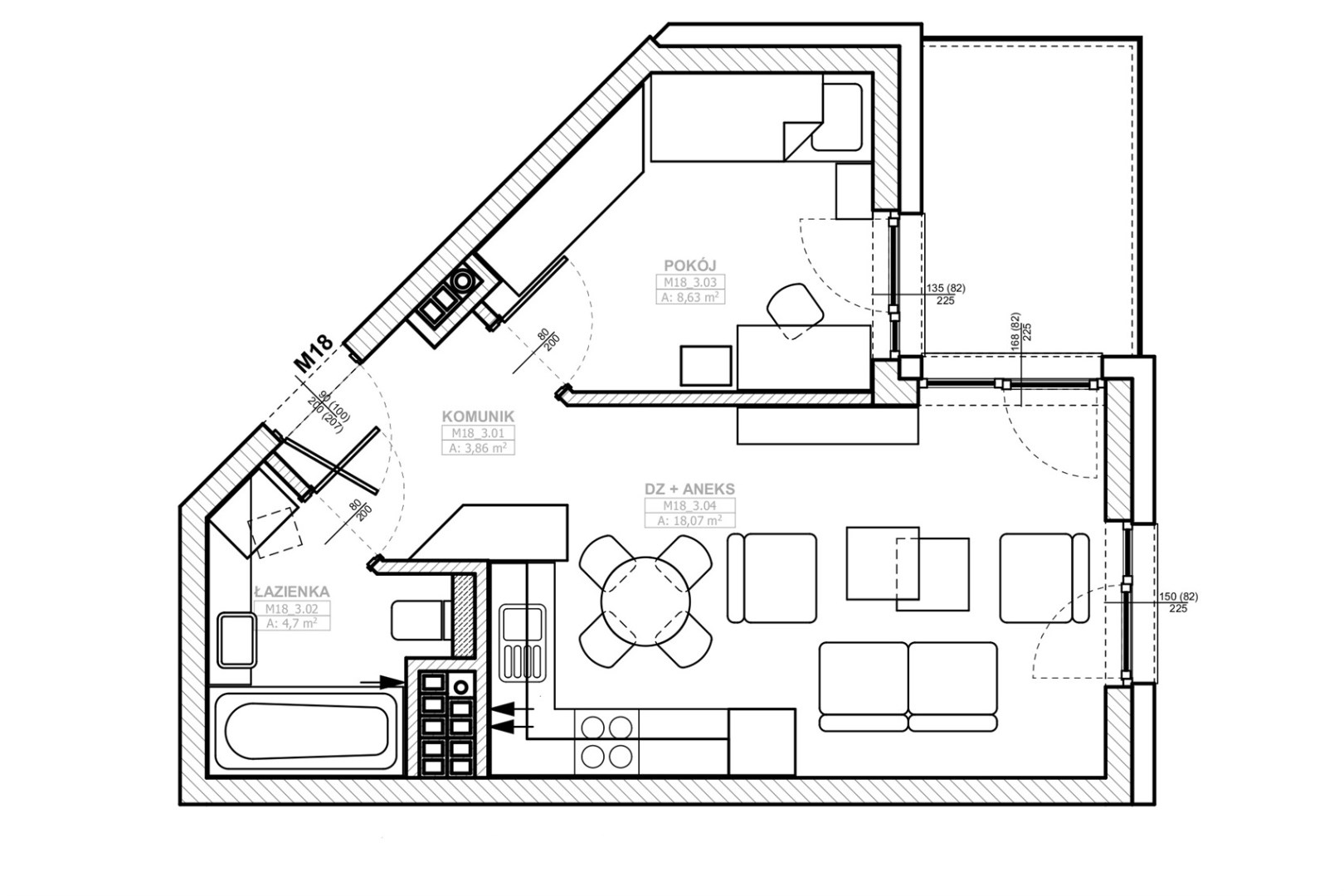
Układ pomieszczeń 2-pokojowego mieszkania o pow. 35,26 m2:
-salon z aneksem kuchennym o pow. 18,07 m2 ,
-sypialnia o pow. 8,63 m2 ,
- łazienka o pow. 4,70 m2 ,
- przedpokój o pow. 3,86 m2

Ogrzewanie mieszkań zrealizowane w oparciu o centralną kotłownię gazową oraz kolektory słoneczne co skutecznie pomaga obniżyć koszty eksploatacji.

Na życzenie kupującego ogrzewanie podłogowe.


Do każdego mieszkania doprowadzony światłowód z sieci Asta- Net

TERMIN ZAKOŃCZENIA BUDOWY - DO KOŃCA 2025 ROKU.

 Zapraszamy!

 

Nota prawna

Opis oferty zawarty na stronie internetowej sporządzany jest na podstawie oględzin nieruchomości oraz informacji uzyskanych od właściciela, może podlegać aktualizacji i nie stanowi oferty określonej w art. 66 i następnych K.C.
Inwestycja Szkolna 6, Lipka
Symbol oferty FZL-MS-198140
Powierzchnia 35,26 m²
Powierzchnia użytkowa 35,26 m²
Liczba pokoi 2
Rodzaj budynku nowe budownictwo
Technologia budowlana silikat
Standard
Stan lokalu deweloperski
Stan prawny Umowa z Deweloperem
Okna PCV
Instalacje nowe
Balkon duży
Liczba balkonów 1
Winda tak
Liczba wind 1

Pomieszczenia

Powierzchnia pokoi 18,07 8,63 m2
Typ kuchni aneks kuchenny połączony z jadalnią i salonem
Rodzaj kuchni aneks kuchenny - połączony z salonem
Typ łazienki razem z wc
Powierzchnia łazienki 4,70 m2
Liczba przedpokoi 1
Powierzchnia przedpokoi 3,86 m2

Lokalizacja

Kalkulator kredytowy

PLN
%
Wysokość raty

Kalkulator kosztów

PLN
PLN
PLN
PLN
PLN
PLN
%
PLN
Podatek od czynności cywilno-prawnych
Taksa notarialna (opłata notarialna)
VAT od taksy notarialnej (opłaty notarialnej)
Wniosek do WKW
VAT od wniosku do WKW
Prowizja agencji nieruchomości
VAT od prowizji agencji nieruchomości
Wypisy aktu notarialnego - około
RAZEM (cena + opłaty)

Napisz do nas

Proszę wypełnić to pole
Proszę wypełnić to pole
Proszę wypełnić to pole
Proszę wypełnić to pole
Proszę wypełnić to pole
Trwa wysyłanie...

Ta strona wykorzystuje pliki cookies w celach statystycznych oraz w celu dostosowania naszych serwisów do indywidualnych potrzeb klientów. Zmiany ustawień dotyczących plików cookie można dokonać w dowolnej chwili modyfikując ustawienia przeglądarki. Korzystanie z tej strony bez zmian ustawień dotyczących cookies oznacza, że będą one zapisane w pamięci urządzenia.

rozumiem