Złotów

Dom na sprzedaż

Szczegóły oferty

Dom z Działką w Centrum Złotowa


Willa Przy Parku


Jedno z najpiękniejszych lokalizacji w Złotowie - w bezpośrednim sąsiedztwie pięknego, starego parku z siłownią. Z rewelacyjnym dostępem do udogodnień jakie oferuje centrum miasta, a zarazem dzięki położeniu przy ślepej ulicy za parkiem, gwarantuje spokój i przyjazne otoczenie wśród zieleni z miłym sąsiedztwem.

Budynek ekonomiczny dzięki maksymalnemu dociepleniu ścian i stropu.
Przyjazny dla rodzin, gdyż jest dogodnie położony, posiada 2 garaże i liczne pomieszczenia do przechowywania rzeczy.
Bezpieczny, bo w całości ogrodzony, z systemem alarmowym, wideofonem i solidnym drzwiom antywłamaniowym.

Od ogólnego projektu po drobne szczegóły — jest tu wszystko, czego szukasz plus dodatki, które z pewnością przypadną Ci do gustu.


Informacje o nieruchomości:
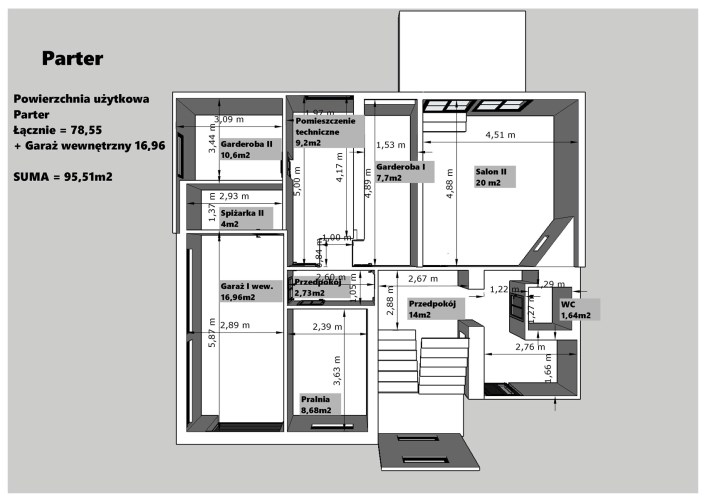
Dom składa się z dwóch poziomów, wewnętrznego garażu (16,96m2) oraz drugiego zewnętrznego garażu (22,68m2).
Posesja ogrodzona jest nowoczesnym płotem z automatyczną przesuwną bramą oraz bramką z wideofonem.

Drzwi do obydwu garaży są automatyczne, sterowane pilotem.
Drzwi wejściowe ze świetlikami marki Hormann spełniają wysokie kryteria drzwi antywłamaniowych o odpowiednich właściwościach cieplnych.

Z salonu dolnego (20m2) można wyjść na kameralny, zielony ogród. Na ogrodzie starodrzewia. Zainstalowany system automatycznego nawadnianie trawnika. W całości ogrodzony, z miejscem na grilla oraz na plac zabaw dla dzieci.



Dom posiada liczne miejsca do przechowywania ubrań i mniej potrzebnych rzeczy. Dostępne są dwie osobne garderoby (10,6m2 i 7,7m2) oraz pralnio - suszarnia.


W nieruchomości zostały wymienione wszystkie okna na nowoczesną stolarkę drewnianą w kolorze szarym. Wewnątrz wszystkie drzwi drewniane wykonane były przez stolarza i również są w nowoczesnym kolorze szarym. Okna są duże co zapewnia, że wnętrza  przez cały dzień skąpane są w naturalnym świetle. Dodatkowo, we wszystkich oknach zainstalowano rolety plisowane termoizolacyjne.

Schody główne wykonane są z drewna jesionowego klejonego. W salonie i pokojach na podłodze wysokiej jakości drewniana klepka.

Dom posiada dwa kominki. Ściana kominka w dolnym salonie pokryta starą cegłą ciętą z lica. Ciepłe powietrze rozprowadzane jest na korytarz i klatkę schodową. Drugi kominek znajduje się na piętrze w drugim salonie (55,55m2) i jest otwarty. Dzięki temu wieczorami można podziwiać żywy, niczym nie ograniczony ogień. Pokryty jest starymi deskami dębowymi, a wykorzystanie w aranżacji połączenia starych i nowych elementów, nadaje całości niepowtarzalnego, eklektycznego charakteru.

Salon przestronny a wysoki sufit dodatkowo wzmaga odczucie przestrzeni. Z salonu prowadzi przejście na niewielką antresolę, z której wygodnie można przejść na dach budynku, mogący służyć jako taras.



Wszystkie ściany, łącznie z pomieszczeniami technicznym pokryte są gładzią szpachlową.


Do dolnego salonu prowadzą szklane drzwi wykonane techniką fusingu firmy Villa Glass na specjalne zamówienie.

Na parterze zlokalizowane jest dodatkowe WC (1,64m2) z umywalką.


W domu wymieniono wszystkie grzejniki na nowoczesne w kolorze szarym. W głównej łazience zainstalowano ogrzewanie podłogowe.

Nieruchomość ogrzewana jest z sieci miejskiej.

W nowoczesnej łazience (9,16m2), W łazience przestronna kabina, WC na stelażu i duża umywalka. Nie bez znaczenia jest fakt, że łazienka wyposażona jest w okno, co ułatwia odprowadzanie wilgoci. Dodatkowym atutem na pewno jest wykorzystanie jako wewnętrznego parapetu starej drewnianej deski, co stylistycznie komponuje się wystrojem łazienki.

W górnym salonie zamontowany jest nowoczesny klimatyzator z zewnętrznym wentylatorem. 

W 2012 r. wykonano instalację całej trójfazowej sieci energetycznej z nowoczesnymi zabezpieczeniami przeciwprzepięciowymi.

W cenie domu pozostają:

kuchnia: zabudowa kuchenna pod zamówienie z systemem BLUM; sprzętem AGD: płyta indukcyjna SAMSUNG z funkcją booster, piekarnik elektryczny SAMSUNG, okap kuchenny BERG, zmywarka SAMSUNG, lodówko-zamrażarka side SAMSUNG, mikrofalówka SHARP; bateria kuchenna GROHE

garderoby: szafy z wieszakami i półkami

łazienka: szafka pod umywalkę; baterie łazienkowe GROHE na specjalne zamówienie; kabina RADAWAY;  WC + deska wolnoopadająca DURAVIT, umywalka DURAVIT,

sypialnia: szafa z drzwiami przesuwnymi

salony:  narożniki+1xtelewizor


Historia:
  • 1970/1971 - budowa domu
  • 2011/2012 - gruntowny remont wewnątrz domu obejmujący wymianę instalacji elektrycznej, grzejników, podłóg, położenie gładzi na wszystkich ścianach, remont kuchni, pomieszczeń gospodarczych, instalacja nowego płotu, elektrycznej bramy, drzwi garażowych i inne
  • 2014 - położenie kostki granitowej, założenie nawodnienia automatycznego ogrodu, dosadzanie roślin,
  • 2016 - założenie bramy elektrycznej do garażu zewnętrznego
  • 2019 - ocieplenie domu styropianem grafitowym, wymiana w całości blacharki dachowej, założenie nowej elewacji na wszystkich elementach domu, w tym płotu i garażu zewnętrznego
  • 2023 - docieplenie i nowe pokrycie dachu

PRAWDZIWA PEREŁKA - ZAPRASZAM DO ZAPOZNANIA SIĘ Z OFERTĄ

 

Nota prawna

Opis oferty zawarty na stronie internetowej sporządzany jest na podstawie oględzin nieruchomości oraz informacji uzyskanych od właściciela, może podlegać aktualizacji i nie stanowi oferty określonej w art. 66 i następnych K.C.
Symbol oferty FZL-DS-197644
Powierzchnia 234,76 m²
Powierzchnia użytkowa 186,83 m²
Powierzchnia działki 475 m²
Liczba pokoi 5
Rodzaj domu jednorodzinny
Standard
Liczba pięter w budynku 2
Wymiary działki 19x25 m
Garaż garaż
Stan prawny Wlasnosc
Okna DREWNIANE NOWY TYP
Instalacje nowe
Zagosp. działki zagospodarowana
Ukształtowanie działki płaska
Kształt działki prostokąt
Pokrycie dachu papa termozgrzewalna
Stan budynku do zamieszkania
Ogrodzenie działki mieszane
Woda ciepła - miejska
Dojazd asfalt
Otoczenie park
Ogrzewanie C.O. miejskie
Alarm tak
Tarasy taras
Drzwi antywłamaniowe tak
Prąd jest
Kanalizacja miejska

Pomieszczenia

Powierzchnia pokoi 55,55 20 15 6,8, 6,7  m2
Typ kuchni z nowoczesną zabudową kuchenną
Rodzaj kuchni jasna z oknem
Powierzchnia kuchni 13,68 m2
Typ łazienki razem z wc
Liczba łazienek 1
Powierzchnia łazienki 9,16 m2
Liczba WC 1
Powierzchnia WC 1,6 m2

Lokalizacja

Kalkulator kredytowy

PLN
%
Wysokość raty

Kalkulator kosztów

PLN
PLN
PLN
PLN
PLN
PLN
%
PLN
Podatek od czynności cywilno-prawnych
Taksa notarialna (opłata notarialna)
VAT od taksy notarialnej (opłaty notarialnej)
Wniosek do WKW
VAT od wniosku do WKW
Prowizja agencji nieruchomości
VAT od prowizji agencji nieruchomości
Wypisy aktu notarialnego - około
RAZEM (cena + opłaty)

Napisz do nas

Proszę wypełnić to pole
Proszę wypełnić to pole
Proszę wypełnić to pole
Proszę wypełnić to pole
Proszę wypełnić to pole
Trwa wysyłanie...

Ta strona wykorzystuje pliki cookies w celach statystycznych oraz w celu dostosowania naszych serwisów do indywidualnych potrzeb klientów. Zmiany ustawień dotyczących plików cookie można dokonać w dowolnej chwili modyfikując ustawienia przeglądarki. Korzystanie z tej strony bez zmian ustawień dotyczących cookies oznacza, że będą one zapisane w pamięci urządzenia.

rozumiem