Piła, Podlasie

Dom na sprzedaż

Szczegóły oferty

DOM JEDNORODZINNY WRAZ Z CZĘŚCIĄ GOSPODARCZĄ!
Nieruchomość daje wyjątkowe możliwości zaadoptowania przestrzeni pod własne potrzeby.


Przedmiotem oferty jest działka gruntu (własność) o pow. 606m2 zabudowana domem jednorodzinnym.
Nieruchomość zlokalizowana jest na osiedlu Podlasie przy ul. Lipowej.
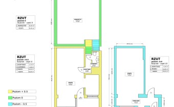
Budynek podzielony jest na dwie części:
  • mieszkalną o pow. użytkowej 107m2- składająca się z salonu, kuchni, WC oraz przedpokoju na poziomie "0" oraz 4 pokoi, łazienki i przedpokoju na poziomie "+0,5"
  • gospodarczą z dwoma niezależnymi wejściami z poziomu "-0,5" oraz "+0,5" o łącznej powierzchni blisko 101m2.
Dodatkowo część mieszkalna jest podpiwniczona- istnieje możliwość zaadoptowania pod dodatkowe mieszkanie.

Budynek wybudowany w 1984 roku w technologii tradycyjnej. Ściany nadziemia gazobeton+ cegła. Strop nad piwnica i parteru żelbetowy typu ŻERAŃ. Stropodach żelbetowy, płaski pokryty papą.


Ogrzewanie: piec węglowy

Nieruchomość zlokalizowana na osiedlu domów jednorodzinnych. Świetnie skomunikowana z innymi częściami miasta. W niedalekim sąsiedztwie znajdują się szkoła podstawowa oraz uczelnia wyższa.

Nota prawna

Opis oferty zawarty na stronie internetowej sporządzany jest na podstawie oględzin nieruchomości oraz informacji uzyskanych od właściciela, może podlegać aktualizacji i nie stanowi oferty określonej w art. 66 i następnych K.C.
Symbol oferty FRP-DS-197017
Powierzchnia 266,32 m²
Powierzchnia użytkowa 175,78 m²
Powierzchnia działki 606 m²
Liczba pokoi 5
Rodzaj domu bliźniak
Standard
Wymiary działki 33x20 m
Okna drewniane
Instalacje ELEKTRYCZNA
Balkon jest
Zagosp. działki niezagospodarowana
Ukształtowanie działki płaska
Kształt działki trapez
Pokrycie dachu papa termozgrzewalna
Stan budynku do remontu
Podpiwniczenie tak
Ogrodzenie działki ogrodzona
Rok budowy 1984
Woda jest
Dojazd ASFALTOWA
Otoczenie zabudowa jednorodzinna
Ogrzewanie piec węglowy
Odległość do komunikacji publicznej [m] 700 m
Odl. do szkoły [m] 800 m
Prąd jest
Kanalizacja miejska

Lokalizacja

Kalkulator kredytowy

PLN
%
Wysokość raty

Kalkulator kosztów

PLN
PLN
PLN
PLN
PLN
PLN
%
PLN
Podatek od czynności cywilno-prawnych
Taksa notarialna (opłata notarialna)
VAT od taksy notarialnej (opłaty notarialnej)
Wniosek do WKW
VAT od wniosku do WKW
Prowizja agencji nieruchomości
VAT od prowizji agencji nieruchomości
Wypisy aktu notarialnego - około
RAZEM (cena + opłaty)

Napisz do nas

Proszę wypełnić to pole
Proszę wypełnić to pole
Proszę wypełnić to pole
Proszę wypełnić to pole
Proszę wypełnić to pole
Trwa wysyłanie...

Ta strona wykorzystuje pliki cookies w celach statystycznych oraz w celu dostosowania naszych serwisów do indywidualnych potrzeb klientów. Zmiany ustawień dotyczących plików cookie można dokonać w dowolnej chwili modyfikując ustawienia przeglądarki. Korzystanie z tej strony bez zmian ustawień dotyczących cookies oznacza, że będą one zapisane w pamięci urządzenia.

rozumiem