Piła, Zielona Dolina

Mieszkanie na sprzedaż

Szczegóły oferty

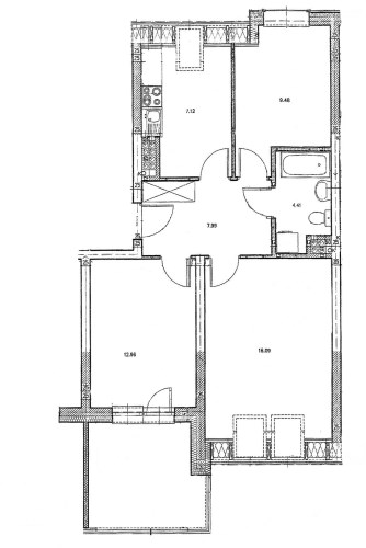
Nowoczesne 3 pokojowe mieszkanie o powierzchni użytkowej 57,92 m² z tarasem, w zielonej części Piły - os. Zielona Dolina położone na 3 piętrze bloku z 2012r.


Atuty, które wyróżniają tę ofertę


Przestrzeń i funkcjonalny układ.  Trzy pokoje zapewniają komfort dla rodziny lub pary z dzieckiem. Salon o powierzchni 16,09 m² to miejsce idealne na wspólne chwile. Dwie sypialnie o powierzchniach 12,46 m² i 9,48 m² pozwalają na elastyczne wykorzystanie – np. pokój dziecięcy, gabinet lub pokój gościnny.


Taras jako przedłużenie mieszkania. Ten około 10 - metrowy taras to ogromna wartość - idealne miejsce na relaks, poranną kawę czy miniogród. W letnie dni wnętrze łączy się z naturą.


Częściowo gotowe do zamieszkania. Zostają kluczowe elementy wyposażenia - nie trzeba zaczynać „od zera”. To oszczędność czasu i kosztów, co doceni każdy kupujący.


Spokój, ale z udogodnieniami w zasięgu ręki. W pobliżu budynku dostępne są liczne miejsca parkingowe. Tylko ok. 200 m dzieli Cię od terenów spacerowych nad rzeką - idealne na codzienne spacery, bieganie czy wyciszenie. A jeśli masz dzieci - ważna informacja: ok. 400 m od domu powstało nowe publiczne przedszkole co sprawia, że lokalizacja staje się jeszcze bardziej rodzinna i praktyczna.


Idealna oferta dla kogo?
Dla rodzin z dziećmi - wygodne trzy pokoje, taras, blisko przedszkole. 
Dla pary lub singla z potrzebą przestrzeni - jedna bardziej reprezentacyjna część (salon) plus prywatna sypialnia i gabinet. 
Dla osób ceniących relaks po pracy na świeżym powietrzu - tereny spacerowe nad rzeką tuż za rogiem. 
Dla tych, którzy chcą szybko się wprowadzić -część wyposażenia zostaje w cenie.


Nie zwlekaj - umów się na prezentację!

Nota prawna

Opis oferty zawarty na stronie internetowej sporządzany jest na podstawie oględzin nieruchomości oraz informacji uzyskanych od właściciela, może podlegać aktualizacji i nie stanowi oferty określonej w art. 66 i następnych K.C.
Symbol oferty FZL-MS-198645
Powierzchnia 57,92 m²
Powierzchnia użytkowa 57,92 m²
Powierzchnia balkonów/tarasów 10,00 m²
Liczba pokoi 3
Rodzaj budynku apartamentowiec
Standard
Opłaty w czynszu administracja, Części wspólne, fundusz remontowy, sprzątanie, wywóz nieczystości, zaliczka na fundusz remontowy
Opłaty wg liczników CO, Woda ciepła, Woda zimna
Liczba pięter w budynku 3
Piwnica 3,39 m²
Stan prawny Odrębna własność lokalu
Mies. czynsz admin. 699 PLN
Woda jest
Dojazd asfalt
Ogrzewanie C.O. miejskie
Tarasy taras duży

Lokalizacja

Kalkulator kredytowy

PLN
%
Wysokość raty

Kalkulator kosztów

PLN
PLN
PLN
PLN
PLN
PLN
%
PLN
Podatek od czynności cywilno-prawnych
Taksa notarialna (opłata notarialna)
VAT od taksy notarialnej (opłaty notarialnej)
Wniosek do WKW
VAT od wniosku do WKW
Prowizja agencji nieruchomości
VAT od prowizji agencji nieruchomości
Wypisy aktu notarialnego - około
RAZEM (cena + opłaty)

Podobne oferty

oferta na wyłączność
mieszkanie na sprzedaż - Piła

mieszkanie na sprzedaż

Piła
3 pokoje 72,21 m2 7 900,00 zł/m2
bez prowizji
mieszkanie na sprzedaż - Piła

mieszkanie na sprzedaż

Piła
3 pokoje 60,42 m2 9 000,00 zł/m2
oferta na wyłączność
mieszkanie na sprzedaż - Piła

mieszkanie na sprzedaż

Piła
3 pokoje 72,22 m2 8 000,00 zł/m2
mieszkanie na sprzedaż - Piła, Górne

mieszkanie na sprzedaż

Piła, Górne
3 pokoje 50,85 m2 8 825,96 zł/m2

Napisz do nas

Proszę wypełnić to pole
Proszę wypełnić to pole
Proszę wypełnić to pole
Proszę wypełnić to pole
Proszę wypełnić to pole
Trwa wysyłanie...

Ta strona wykorzystuje pliki cookies w celach statystycznych oraz w celu dostosowania naszych serwisów do indywidualnych potrzeb klientów. Zmiany ustawień dotyczących plików cookie można dokonać w dowolnej chwili modyfikując ustawienia przeglądarki. Korzystanie z tej strony bez zmian ustawień dotyczących cookies oznacza, że będą one zapisane w pamięci urządzenia.

rozumiem