MIESZKANIE 3 POKOJOWE - PIŁA- OSIEDLE GÓRNE
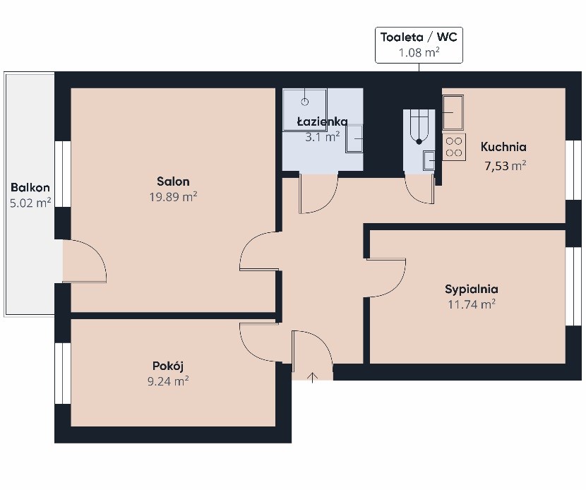
Mieszkanie 3 pokojowe o pow. 60,70 m2 usytuowane na I piętrze budynku z lat 90'.
Idealne mieszkanie dla rodzin z dziećmi. W najbliższym sąsiedztwie znajduje się szkoła, przedszkole oraz boisko sportowe.
Lokal dwustronny o bardzo korzystnym układzie. Niewątpliwym atutem jest przestronny balkon.
Okna PCV- we wszystkich oknach zamontowane są rolety oraz moskitiery.
Mieszkanie składa się z:
Ogrzewanie oraz ciepła woda: z sieci miejskiej
Budynek po termomodernizacji.
Mieszkanie bezpieczne- bez piecyka gazowego
Budynek usytuowany na lubianym Osiedlu Górnym- zapewnia łatwą komunikację i dostęp do głównych dróg i komunikacji publicznej. W najbliższym sąsiedztwie znajduje się szkoła podstawowa, przedszkole oraz galeria handlowa.



