Piła

Mieszkanie na sprzedaż

Szczegóły oferty

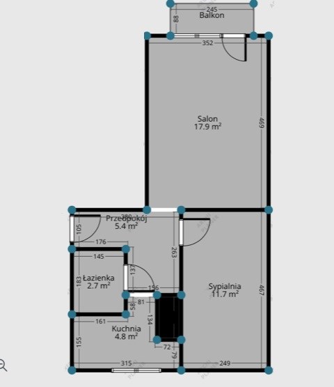
Mieszkanie 2 pokojowe o pow. 44,8m2 zlokalizowane w centrum miasta- ul. Bydgoska.
Słoneczne, przestronne, świeżo po generalnym remoncie...

Mieszkanie jest aktualnie w trakcie remontu – planowana data oddania nowemu właścicielowi 01.11.2025r.
Lokal sprzedawany będzie z częściowym umeblowaniem- możliwe dobranie niektórych elementów wykończenia/wyposażenia na etapie remontu.

mieszkanie składa się z :

  • salon o pow. 17,9m2- z wyjściem na balkon
  • pokój o pow. 11,70m2
  • kuchnia o pow. 4,80m2
  • łazienka o pow. 2,70m2
  • przedpokój 
Do lokalu przynależy piwnica o pow. 2,3m2

Oto niektóre z planowanych prac remontowych:

  • nowa instalacja elektryczna,
  • nowe instalacje wod-kan ,
  • gipsowanie ścian, położenie farb akrylowych, 
  • nowe panele wysokiej klasy ścieralności
  • nowa glazura łazienkowa wraz z armaturą
  • stolarka drzwiowa wraz z ościeżnicami
  • nowa kuchnia wyposażona w sprzęt AGD: płyta indukcyjna, piekarnik, okap.

Czynsz: 580zł/1os. (w tym zaliczka na C.O., zimną wodę oraz ciepłą wodę, fundusz remontowy, wywóz nieczystości)
Ogrzewanie: miejskie

Serdecznie zapraszam do kontaktu!

Nota prawna

Opis oferty zawarty na stronie internetowej sporządzany jest na podstawie oględzin nieruchomości oraz informacji uzyskanych od właściciela, może podlegać aktualizacji i nie stanowi oferty określonej w art. 66 i następnych K.C.
Symbol oferty FRP-MS-198625
Powierzchnia 44,80 m²
Powierzchnia użytkowa 44,80 m²
Powierzchnia balkonów/tarasów 2,20 m²
Liczba pokoi 2
Rodzaj budynku blok
Standard
Piwnica 2,30 m²
Stan lokalu po generalnym remoncie
Okna PCV
Instalacje wymienione
Balkon jest
Widok na podwórko
Woda ciepła - miejska
Dojazd ASFALTOWA
Otoczenie działki zabudowane
Ogrzewanie C.O. miejskie
Odległość do komunikacji publicznej [m] 100 m
Odl. do sklepu [m] 200 m
Odl. do szkoły [m] 200 m
Odl. do przedszkola [m] 300 m
Usytuowanie dwustronne

Lokalizacja

Kalkulator kredytowy

PLN
%
Wysokość raty

Kalkulator kosztów

PLN
PLN
PLN
PLN
PLN
PLN
%
PLN
Podatek od czynności cywilno-prawnych
Taksa notarialna (opłata notarialna)
VAT od taksy notarialnej (opłaty notarialnej)
Wniosek do WKW
VAT od wniosku do WKW
Prowizja agencji nieruchomości
VAT od prowizji agencji nieruchomości
Wypisy aktu notarialnego - około
RAZEM (cena + opłaty)

Podobne oferty

oferta na wyłączność
mieszkanie na sprzedaż - Piła

mieszkanie na sprzedaż

Piła
2 pokoje 39,74 m2 7 900,00 zł/m2
oferta na wyłączność
mieszkanie na sprzedaż - Piła

mieszkanie na sprzedaż

Piła
2 pokoje 42,11 m2 8 600,00 zł/m2
oferta na wyłączność
mieszkanie na sprzedaż - Piła

mieszkanie na sprzedaż

Piła
2 pokoje 42,23 m2 8 100,00 zł/m2
oferta na wyłączność
mieszkanie na sprzedaż - Piła

mieszkanie na sprzedaż

Piła
1 pokój 29,37 m2 8 400,00 zł/m2

Napisz do nas

Proszę wypełnić to pole
Proszę wypełnić to pole
Proszę wypełnić to pole
Proszę wypełnić to pole
Proszę wypełnić to pole
Trwa wysyłanie...

Ta strona wykorzystuje pliki cookies w celach statystycznych oraz w celu dostosowania naszych serwisów do indywidualnych potrzeb klientów. Zmiany ustawień dotyczących plików cookie można dokonać w dowolnej chwili modyfikując ustawienia przeglądarki. Korzystanie z tej strony bez zmian ustawień dotyczących cookies oznacza, że będą one zapisane w pamięci urządzenia.

rozumiem