Jastrowie

Mieszkanie na sprzedaż

Szczegóły oferty


Urokliwe mieszkanie w kamienicy z ogrodem – centrum Jastrowia 

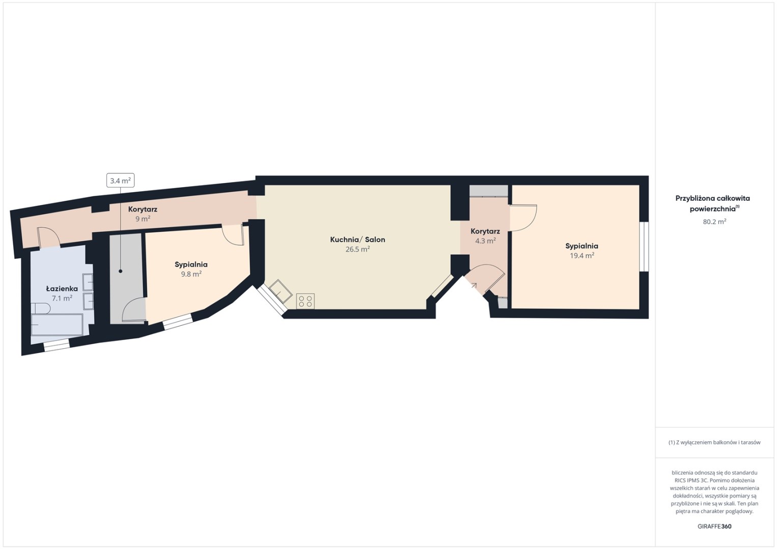
Na sprzedaż wyjątkowe mieszkanie  o pow. 81,5 m2 położone w samym sercu Jastrowia. To idealna propozycja dla rodzin, które cenią sobie przestrzeń, wygodę i dostęp do miejskich udogodnień. 

Opis nieruchomości:
Mieszkanie składa się z:

  • przestronnego salonu z aneksem kuchennym o pow. 26,6 m2, idealnego miejsca do wspólnego spędzania czasu,

  • sypialni o pow. 9,8 m2, zapewniającej spokój i prywatność,

  • pokoju dziecięcego o pow. 19,4 m2, który można dowolnie zaaranżować,
  • garderoby o pow. 3,4 m2
  • łazienki  o pow. 7,1 m2 z nowoczesnym wykończeniem.
  • korytarza o pow. 9 m2
Link do spaceru wirtualnego: 
https://tour.giraffe360.com/6d4ab0ac501f4d9ba399e3b086d7e361

W całym mieszkaniu zastosowano ogrzewanie podłogowe, co zapewnia komfort cieplny przez cały rok.

Dodatkowe atuty:
Do mieszkania przynależy prawo do korzystania z   dużej piwnicy o pow. 20 m2 , szopy o pow. 10 m2  oraz zagospodarowany ogródek o powierzchni ok. 100 m²,  strefa relaksu z placem zabaw dla dzieci – doskonałe miejsce do wypoczynku na świeżym powietrzu.

Mieszkanie  w  dobrym stanie technicznym, po licznych modernizacjach z dbałością o funkcjonalność i wygodę mieszkańców.

Najważniejsze atuty:

  • W każdym pokoju indywidualne sterowanie ogrzewaniem podłogowym – możliwość dopasowania temperatury do własnych potrzeb.

  • Wszystkie instalacje (elektryczna, hydrauliczna, grzewcza) zostały wymienione 5 lat temu, co gwarantuje bezpieczne i bezproblemowe użytkowanie.

  • Dach wymieniony w tym roku – nowa konstrukcja i pokrycie zapewniające doskonałą izolację i spokój na długie lata.

Nieruchomość gotowa do zamieszkania bez konieczności dodatkowych wysokich nakładów finansowych.

Lokalizacja:
Kamienica znajduje się w centrum Jastrowia, w pobliżu sklepów, licznych punktów handlowo-usługowych,  kościoła, poczty i urzędu miasta.  Doskonała komunikacja oraz spokojne, przyjazne sąsiedztwo czynią to miejsce  wygodnym do życia.

Termin wydania  - do uzgodnienia. 
Powyższy opis ma charakter informacyjny i nie stanowi oferty w rozumieniu przepisów Kodeksu Cywilnego. Wszelkie prawa zastrzeżone! Opis oraz zdjęcia są własnością biura. Kopiowanie, powielanie, wykorzystywanie zdjęć i opisu bez zgody autora zabronione.
Zapraszam serdecznie do zapoznania się z ofertą i prezentację
Udzielamy bezpłatnej pomocy w uzyskaniu kredytu na zakup w/w nieruchomości. 

Nota prawna

Opis oferty zawarty na stronie internetowej sporządzany jest na podstawie oględzin nieruchomości oraz informacji uzyskanych od właściciela, może podlegać aktualizacji i nie stanowi oferty określonej w art. 66 i następnych K.C.
Symbol oferty FRP-MS-199222
Powierzchnia 81,50 m²
Powierzchnia użytkowa 81,50 m²
Liczba pokoi 3
Rodzaj budynku kamienica
Opłaty wg liczników prąd
Liczba pięter w budynku 1
Piwnica 20,00 m²
Okna PCV
Instalacje dobre
Gaz brak
Woda ciepła - terma
Dojazd ASFALTOWA
Otoczenie centrum miasta
Usytuowanie dwustronne

Lokalizacja

Kalkulator kredytowy

PLN
%
Wysokość raty

Kalkulator kosztów

PLN
PLN
PLN
PLN
PLN
PLN
%
PLN
Podatek od czynności cywilno-prawnych
Taksa notarialna (opłata notarialna)
VAT od taksy notarialnej (opłaty notarialnej)
Wniosek do WKW
VAT od wniosku do WKW
Prowizja agencji nieruchomości
VAT od prowizji agencji nieruchomości
Wypisy aktu notarialnego - około
RAZEM (cena + opłaty)

Napisz do nas

Proszę wypełnić to pole
Proszę wypełnić to pole
Proszę wypełnić to pole
Proszę wypełnić to pole
Proszę wypełnić to pole
Trwa wysyłanie...

Ta strona wykorzystuje pliki cookies w celach statystycznych oraz w celu dostosowania naszych serwisów do indywidualnych potrzeb klientów. Zmiany ustawień dotyczących plików cookie można dokonać w dowolnej chwili modyfikując ustawienia przeglądarki. Korzystanie z tej strony bez zmian ustawień dotyczących cookies oznacza, że będą one zapisane w pamięci urządzenia.

rozumiem