Piła, Zielona Dolina

Mieszkanie na sprzedaż

Szczegóły oferty

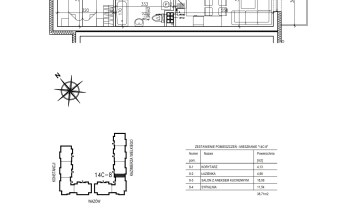
MIESZKANIE 2 POKOJOWE O POW. 38,33 M2 W STANIE DEWELOPERSKIM (I PIĘTRO)
OSIEDLE KONSTANCJI - NOWA INWESTYCJA DEWELOPERSKA W PILE OS. ZIELONA DOLINA


Korzystając z Naszych usług gwarantujemy:
  • Gwarancja ceny dewelopera
  • Kupujący nie płaci prowizji
  • Bezpłatną pomoc w uzyskaniu kredytu (wycena nieruchomości oraz rok ubezpieczenia gratis!)
  • Możliwość wygrania wycieczki do Barcelony
Rozkład pomieszczeń:
  • Salon z aneksem kuchennym o pow. 18,24 m2 z wyjściem na balkon
  • Sypialnia o pow. 10,87 m2
  • Łazienka o pow. 4,70 m2
  • Korytarz o pow. 4,10 m2
POSIADAMY W OFERCIE RÓWNIEŻ INNE MIESZKANIA 1, 2, 3, 4 POKOJOWE O ZRÓŻNICOWANYCH POWIERZCHNIACH I UKŁADACH

OSIEDLE KONSTANCJI TO …
  • KOMFORTOWE MIESZKANIA - 1, 2, 3, 4 pokojowe (od 25,87 m2 do 80,92 m2)
  • ETAPY INWESTYCJI - inwestycja jest podzielona na dwa etapy, z których pierwszy zostanie zrealizowany w terminie do dnia 30 czerwca 2021 r., natomiast drugi w terminie do dnia 30 czerwca 2022 r.
  • KOMÓRKI LOKATORSKIE - w cenie mieszkania komórka lokatorska usytuowana na kondygnacji podziemnej
  • MIEJSCA GARAŻOWE I POSTOJOWE - do dyspozycji mieszkańców 63 miejsca garażowe w halach podziemnych oraz 71 miejsc postojowych na parkingu zewnętrznym.
  • Z MYŚLĄ O DZIECIACH - z myślą o najmłodszych mieszkańcach osiedla, w jego dziedzińcu powstanie zorganizowany plac zabaw wraz z otaczającą go zieleń
  • KOMFORT MIESZKAŃCÓW - w każdym budynku zaprojektowana została winda
  • OGRZEWANIE MIEJSKIE Z SIECI MEC - w cenie mieszkania grzejniki w pokojach oraz ogrzewanie podłogowe w łazienkach (zgodnie z projektem). Na etapie budowy istnieje możliwość zmiany sposobu ogrzewania mieszkania z grzejników na ogrzewanie podłogowe, grzejniki kanałowe lub ogrzewanie mieszane.
  • RELAKS - dziedziniec osiedla został zaprojektowany tak, aby mieszkańcy mogli zrelaksować się na ławce przy lekturze najlepszej książki w otoczeniu licznej, starannie dobranej roślinności.
  • SOLIDNOŚĆ - Ściany konstrukcyjne budynku wykonane zostaną z pustaków ceramicznych (porotherm), które dobrze akumulują ciepło i powoli oddają je otoczeniu, dzięki czemu w naturalny sposób pomagają utrzymać w mieszkaniach optymalną temperaturę zarówno zimą, jak i latem. Na balkonach montować będziemy wysokiej jakości balustrady ze szkła bezpiecznego. Okna o dużej powierzchni naświetlania, trzyszybowe.
  • ATRAKCYJNA CENA - od 4900 zł/m2
MIESZKANIE 2 POKOJOWE O POW. 38,33 M2 W STANIE DEWELOPERSKIM
OSIEDLE KONSTANCJI - NOWA INWESTYCJA DEWELOPERSKA W PILE OS. ZIELONA DOLINA

 

Nota prawna

Opis oferty zawarty na stronie internetowej sporządzany jest na podstawie oględzin nieruchomości oraz informacji uzyskanych od właściciela, może podlegać aktualizacji i nie stanowi oferty określonej w art. 66 i następnych K.C.
Symbol oferty FRP-MS-191880
Powierzchnia 38,33 m²
Liczba pokoi 2
Rodzaj budynku nowe budownictwo
Liczba pięter w budynku 3
Garaż możliwość kupna
Stan lokalu deweloperski
Stan prawny Odrębna własność lokalu
Okna PCV
Balkon jest
Rok budowy 2021
Widok na podwórko
Gaz brak
Woda tak - miejska
Ogrzewanie miejskie
Winda tak
Usytuowanie środkowe

Pomieszczenia

Typ kuchni aneks kuchenny
Rodzaj kuchni aneks kuchenny

Kalkulator kredytowy

PLN
%
Wysokość raty

Kalkulator kosztów

PLN
PLN
PLN
PLN
PLN
PLN
%
PLN
Podatek od czynności cywilno-prawnych
Taksa notarialna (opłata notarialna)
VAT od taksy notarialnej (opłaty notarialnej)
Wniosek do WKW
VAT od wniosku do WKW
Prowizja agencji nieruchomości
VAT od prowizji agencji nieruchomości
Wypisy aktu notarialnego - około
RAZEM (cena + opłaty)

Podobne oferty

mieszkanie na sprzedaż - Piła, Zielona Dolina

mieszkanie na sprzedaż

Piła, Zielona Dolina
2 pokoje 38,55 m2 4 900,00 zł/m2
mieszkanie na sprzedaż - Piła, Zielona Dolina

mieszkanie na sprzedaż

Piła, Zielona Dolina
2 pokoje 38,88 m2 4 900,00 zł/m2
mieszkanie na sprzedaż - Piła, Zielona Dolina

mieszkanie na sprzedaż

Piła, Zielona Dolina
2 pokoje 39,47 m2 4 900,00 zł/m2
oferta specjalna
mieszkanie na sprzedaż - Piła, Zielona Dolina

mieszkanie na sprzedaż

Piła, Zielona Dolina
2 pokoje 38,88 m2 4 900,00 zł/m2

Napisz do nas

Proszę wypełnić to pole
Proszę wypełnić to pole
Proszę wypełnić to pole
Proszę wypełnić to pole
Proszę wypełnić to pole
Trwa wysyłanie...

Ta strona wykorzystuje pliki cookies w celach statystycznych oraz w celu dostosowania naszych serwisów do indywidualnych potrzeb klientów. Zmiany ustawień dotyczących plików cookie można dokonać w dowolnej chwili modyfikując ustawienia przeglądarki. Korzystanie z tej strony bez zmian ustawień dotyczących cookies oznacza, że będą one zapisane w pamięci urządzenia.

rozumiem