Szydłowo (gw), Szydłowo

Działka na sprzedaż

Szczegóły oferty

Szydłowo

Przedmiotem oferty jest działka gruntu o pow. 4834m2 zabudowana halą magazynową (w trakcie budowy)
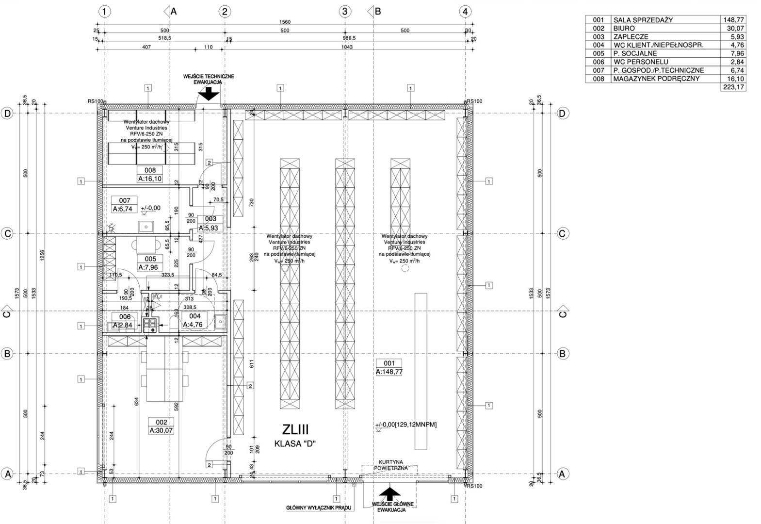
Hala magazynowa konstrukcji stalowej o pow. 223,17m2. Według projektu składająca się następujących pomieszczeń:
  • sala sprzedaży - 148,77m2
  • biuro - 30,07m2
  • zaplecze - 5,93m2
  • wc klient - 4,76m2
  • pom.socjalne - 7,96m2
  • wc personelu - 2,84m2
  • pom.gospodarcze/techniczne - 6,74m2
  • magazynek podręczny - 16,10m2
Według projektu ogrzewanie hali - pompa ciepła
Media: (prąd, woda, kanalizacja, gaz) przy działce

Działka o pow. 4834m2 w całości ogrodzona.
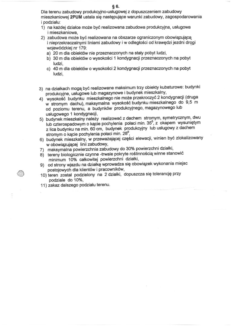
Teren objęty jest aktualnym planem zagospodarowania przestrzennego - teren zabudowy produkcyjno-usługowej z dopuszczeniem zabudowy mieszkaniowej.

Bardzo dobra lokalizacja - bezpośrednio przy drodze wojewódzkiej nr 179

Nota prawna

Opis oferty zawarty na stronie internetowej sporządzany jest na podstawie oględzin nieruchomości oraz informacji uzyskanych od właściciela, może podlegać aktualizacji i nie stanowi oferty określonej w art. 66 i następnych K.C.
Symbol oferty FRP-GS-198875
Powierzchnia 223,17 m²
Przeznaczenie działki mieszkaniowa, komercyjna, inwestycyjna
Stan prawny własność
Ukształtowanie działki lekko nachylona
Kształt działki prostokąt
Ogrodzenie działki ogrodzona
Rok budowy 2025
Przeznaczenie hali produkcyjno-magazynowy, magazynowy
Gaz w ulicy
Woda w drodze
Dojazd asfalt
Położenie poza miastem
Prąd w ulicy
Kanalizacja w ulicy

Lokalizacja

Kalkulator kredytowy

PLN
%
Wysokość raty

Kalkulator kosztów

PLN
PLN
PLN
PLN
PLN
PLN
%
PLN
Podatek od czynności cywilno-prawnych
Taksa notarialna (opłata notarialna)
VAT od taksy notarialnej (opłaty notarialnej)
Wniosek do WKW
VAT od wniosku do WKW
Prowizja agencji nieruchomości
VAT od prowizji agencji nieruchomości
Wypisy aktu notarialnego - około
RAZEM (cena + opłaty)

Napisz do nas

Proszę wypełnić to pole
Proszę wypełnić to pole
Proszę wypełnić to pole
Proszę wypełnić to pole
Proszę wypełnić to pole
Trwa wysyłanie...

Ta strona wykorzystuje pliki cookies w celach statystycznych oraz w celu dostosowania naszych serwisów do indywidualnych potrzeb klientów. Zmiany ustawień dotyczących plików cookie można dokonać w dowolnej chwili modyfikując ustawienia przeglądarki. Korzystanie z tej strony bez zmian ustawień dotyczących cookies oznacza, że będą one zapisane w pamięci urządzenia.

rozumiem